2021 Ocean Sands Water System Annual Water Quality Report.
Events
os-2020-h2o-report
2020 Ocean Sands Water System Annual Water Quality Report.
os-2018-water-quality
2018 annual Drinking Water Quality Report for Ocean Sands Development
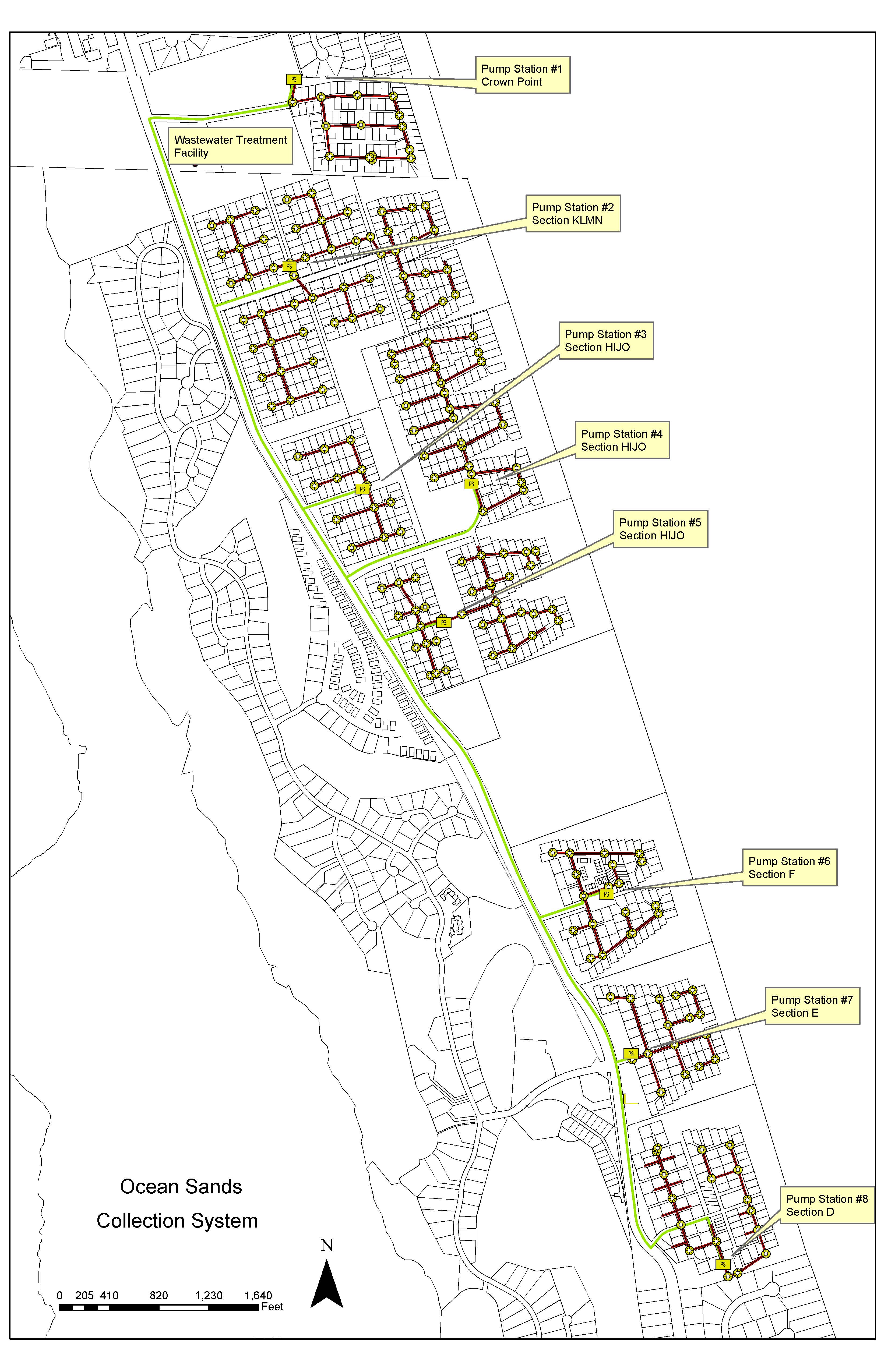
Ocean-Sands-Collection-Map
Map of Ocean Sands Collection Stations and Wastewater Treatment Facility.
ocean-sands-2019-h2o-report
2019 annual Drinking Water Quality Report for Ocean Sands Development
no-devices
No symbol over gas can, medicine bottle and rags.
mainland-water-plant
mainland-annual-water-quality-report-2017
Currituck County Mainland Annual Water Quality Report for 2017
mainland-annual-water-quality-report-2016
Currituck County Mainland Annual Water Quality Report for 2016




